Монтаж и эксплуатация
Дымофильтр Ятаган «Smoke»

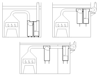
1. Установка «Ятаган» содержит воду и может размещаться в любом помещении, где обеспечивается положительная температура в зимнее время для предотвращения замерзания воды и повреждения изделия
2. Монтаж установки «Ятаган» производится любым общеизвестным способом монтажа вентиляционного оборудования: на кронштейнах к стене, на подставке на полу, на шпильках к потолку и кронштейнах и т.д.
3. Адаптивные фланцы установки «Ятаган» позволяют подобрать наиболее удобный вариант ее размещения и инсталляции в вытяжную систему. При этом экономится значительное пространство ресторана.
4. Для подключения установки «Ятаган» необходимо подключить её к сети электропитания 220 Вольт, к водопроводной сети и к сети канализации
В целях удобства эксплуатации и обслуживания установки Ятаган «Smoke» достаточно обеспечить доступ к изделию с фронтальной стороны. Этого достаточно для контроля, периодического ТО и ремонта, для установки сменных емкостей с гелем